Home » Prefab Tuinkantoor 37m²




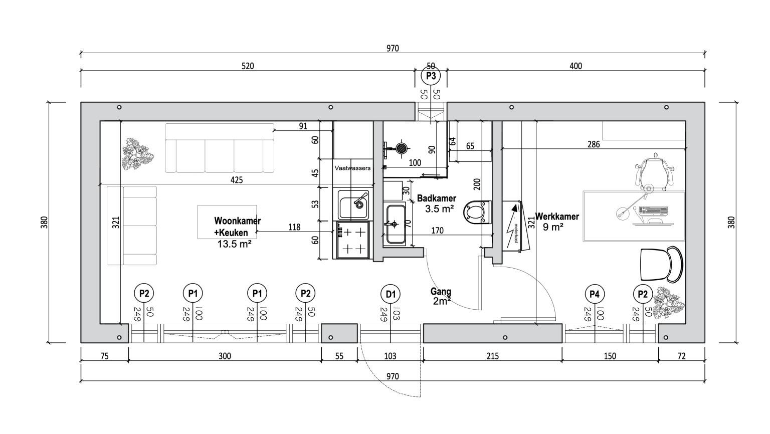
Het 37 m² prefab tuinkantoor van Huisje op maat is ideaal voor wie een stijlvolle, comfortabele en praktische werkruimte aan huis zoekt. Standaard met een moderne pleistergevel, maar optioneel in hout of steenstrip, passend bij jouw tuin en smaak. Volledig geïsoleerd en turnkey geplaatst binnen één dag, zodat je direct kunt genieten van de ruimte. De indeling omvat een open woonkamer met keukenhoek, een aparte 9 m² werkkamer, een complete badkamer met inloopdouche en toilet, en een technische ruimte, volledig ingericht op dagelijks gebruik met maximaal comfort en functionaliteit.
De woning wordt standaard geleverd met plafondverwarmingspanelen in de woonkamer en keuken, een complete elektrische installatie en waterleidingen, evenals binnen- en buitendeuren in wit. De ramen zijn uitgevoerd in witte kunststof kozijnen met HR++ glas voor optimale isolatie. De badkamer en het toilet zijn volledig afgewerkt en direct gebruiksklaar, terwijl de gevel is voorzien van strak wit pleisterwerk. De woning wordt prefab geproduceerd in Kortgene en kan binnen 4 tot 12 weken op locatie worden geleverd, waardoor kwaliteit, snelheid en comfort worden gecombineerd.
In de standaardprijs zijn enkele belangrijke onderdelen en werkzaamheden niet inbegrepen. Dit betreft onder andere het regelen van vergunningen en het naleven van gemeentelijke voorwaarden, de fundering en het bijbehorende grondwerk, transport en plaatsing van de woning, de PVC-vloer met plinten, de keuken, schilderwerk, buitenriolering en extra’s zoals een terras, luifel of overkapping. Op verzoek kan Kaynad al deze onderdelen volledig verzorgen, zodat het project volledig sleutelklaar wordt opgeleverd.
Net als al onze modellen wordt deze unit prefab geproduceerd in onze fabriek in Kortgene. We gebruiken hoogwaardige en recyclebare materialen, dampremmende folies en energiezuinige isolatietechnieken die voldoen aan de BENG-normen. Hierdoor is de ruimte het hele jaar door comfortabel te gebruiken – zowel in de zomer als in de winter.
De oplevering gebeurt binnen 2 tot 8 weken. Dankzij ons prefab systeem wordt het gebouw op locatie in één dag geplaatst – inclusief afwerking en technische installatie. Zo creëer je zonder gedoe een volwaardige werk- of praktijkruimte in je eigen tuin.
Een tuinkantoor biedt niet altijd de juiste oplossing wanneer je op zoek bent naar extra woonruimte of zorg op maat. Heb je behoefte aan een comfortabele, veilige en zelfstandige leefomgeving dicht bij huis? Dan kan een zorgwoning de ideale keuze zijn. Ontdek hoe onze maatwerkoplossingen aansluiten bij jouw wensen en situatie.