Home » Prefab Tuinkantoor 35m²




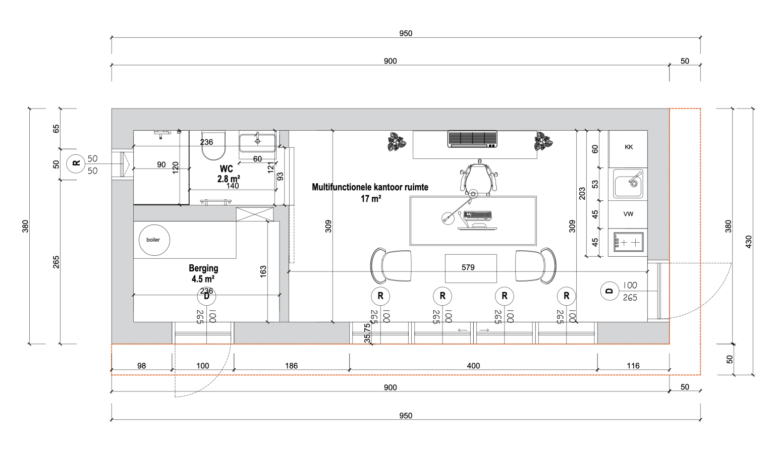
Ben je op zoek naar een hoogwaardige en ruime werkplek in je tuin? Het 35 m² prefab tuinkantoor van Kaynad combineert slimme indeling met een warme, natuurlijke uitstraling dankzij de houten gevelafwerking. Deze modulaire unit is volledig geïsoleerd, duurzaam geproduceerd en binnen één dag sleutelklaar geplaatst. Het model biedt een royale leefruimte met keukenoptie, een afgesloten werkkamer, een complete badkamer met douche en toilet, en een aparte technische ruimte. Dit maakt het tuinkantoor uitermate geschikt voor dagelijks gebruik, zonder concessies te doen aan comfort of functionaliteit.
De woning wordt standaard geleverd met plafondverwarmingspanelen in de woonkamer en keuken, een complete elektrische installatie en waterleidingen, evenals binnen- en buitendeuren in wit. De ramen zijn uitgevoerd in witte kunststof kozijnen met HR++ glas voor optimale isolatie. De badkamer en het toilet zijn volledig afgewerkt en direct gebruiksklaar, terwijl de gevel is voorzien van strak wit pleisterwerk. De woning wordt prefab geproduceerd in Kortgene en kan binnen 4 tot 12 weken op locatie worden geleverd, waardoor kwaliteit, snelheid en comfort worden gecombineerd.
In de standaardprijs zijn enkele belangrijke onderdelen en werkzaamheden niet inbegrepen. Dit betreft onder andere het regelen van vergunningen en het naleven van gemeentelijke voorwaarden, de fundering en het bijbehorende grondwerk, transport en plaatsing van de woning, de PVC-vloer met plinten, de keuken, schilderwerk, buitenriolering en extra’s zoals een terras, luifel of overkapping. Op verzoek kan Kaynad al deze onderdelen volledig verzorgen, zodat het project volledig sleutelklaar wordt opgeleverd.
De houten gevel geeft het tuinkantoor een elegante en tijdloze uitstraling, passend in vrijwel elke tuinomgeving. Alle units worden vervaardigd in onze eigen fabriek in Kortgene, waarbij gebruik wordt gemaakt van hoogwaardige, recyclebare materialen. Dankzij de dampremmende bouwlagen, sterke vloeropbouw en energiezuinige isolatie voldoet het model aan de strenge BENG-normen en is het geschikt voor elk seizoen.
Het prefab productieproces maakt een snelle levering mogelijk: binnen 2 tot 8 weken kan jouw tuinkantoor gebruiksklaar opgeleverd worden. De plaatsing op locatie gebeurt zonder bouwstress of langdurige overlast – gewoon turnkey binnen één dag.
Een tuinkantoor biedt niet altijd de juiste oplossing wanneer je op zoek bent naar extra woonruimte of zorg op maat. Heb je behoefte aan een comfortabele, veilige en zelfstandige leefomgeving dicht bij huis? Dan kan een zorgwoning de ideale keuze zijn. Ontdek hoe onze maatwerkoplossingen aansluiten bij jouw wensen en situatie.