Generic selectors
Exact matches only
Search in title
Search in content
Post Type Selectors

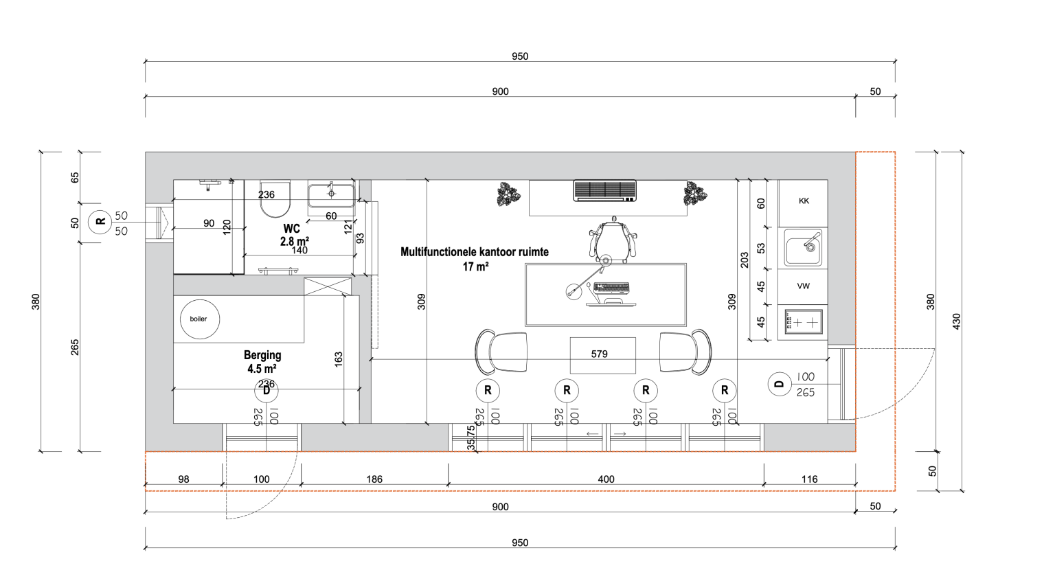
Stijlvol en Functioneel Tuinkantoor in Nijmegen – Volledig op Maat Gerealiseerd

Over dit project

Voor dit project in Nijmegen realiseerde HuisjeOpMaat.nl een op maat gemaakt tuinkantoor dat perfect aansluit bij de wensen van de klant. Het ontwerp is afgestemd op de beschikbare ruimte én de functionele behoeften: een lichte, comfortabele werkplek, een efficiënte badkamer, handige berging en een compacte kitchenette. Het resultaat is een stijlvolle, duurzame en volwaardige extra leefruimte in de tuin — ideaal voor werk, creativiteit of rust — die volledig is afgestemd op jouw persoonlijke situatie.

Het concept van ons tuinkantoor

Bij dit project in Nijmegen hebben we gekozen voor een prefab tuinkantoor dat volledig in de fabriek wordt geproduceerd, met maximale aandacht voor kwaliteit, duurzaamheid en een efficiënt bouwproces. Door deze modulaire werkwijze kunnen we snelle levertijden garanderen, heldere kosten bieden en de overlast op locatie tot een minimum beperken. Het tuinkantoor wordt geleverd met hoogwaardige isolatie, energiezuinige voorzieningen en een compleet afgewerkte binnenruimte. Zo ontstaat er een comfortabele, stijlvolle en direct bruikbare plek in de tuin die perfect geschikt is om te werken, te ontspannen of je creativiteit de ruimte te geven.

Kenmerken en materialen

Het tuinkantoor in Nijmegen is opgebouwd uit duurzame, onderhoudsarme materialen die zorgen voor een lange levensduur en een hoogwaardige uitstraling. De wanden en het dak zijn uitstekend geïsoleerd voor optimaal comfort in alle seizoenen, terwijl de grote ramen zorgen voor veel natuurlijk licht en een open gevoel. De strakke gevelafwerking, duurzame kozijnen en hoogwaardige interieurdetails maken het geheel niet alleen functioneel, maar ook esthetisch aantrekkelijk. Dankzij deze doordachte materiaalkeuzes ontstaat een energiezuinige, moderne en gebruiksvriendelijke ruimte die perfect past bij elke tuin en woonomgeving.

Oplevering en resultaat

Het eindresultaat in Nijmegen is een volledig instapklaar tuinkantoor dat na plaatsing direct gebruikt kan worden. Dankzij de prefab bouwmethode verliep de montage snel en zonder verstoring van de omgeving, waardoor de klant binnen één dag kon genieten van zijn nieuwe werk- en leefruimte. Het tuinkantoor combineert functionaliteit, comfort en stijl, en vormt daarmee een waardevolle uitbreiding van de woning. Met deze maatwerkoplossing laat HuisjeOpMaat.nl zien hoe eenvoudig het is om extra ruimte te creëren die perfect aansluit op de wensen en het dagelijks leven van de gebruiker.