Home » Prefab Mantelzorgwoning 36m²




De 36 m² prefab mantelzorgwoning van Kaynad biedt een comfortabele, veilige en zelfstandige woonruimte direct bij uw woning, ideaal voor een naaste met extra zorgbehoefte. De compacte woning heeft een lichte leefruimte, volledig uitgeruste keukenhoek, aparte slaapkamer, badkamer met inloopdouche en toilet, en een technische ruimte. Volledig geïsoleerd en gebouwd volgens moderne comfort- en kwaliteitsnormen, met optionele afwerking in pleistergevel, hout of steenstrip voor een naadloze aansluiting op de omgeving. Dankzij de snelle, modulaire bouwmethode wordt de woning turnkey binnen één dag geplaatst, zodat u direct kunt genieten van een functionele en warme woonoplossing dichtbij uw geliefde.
De woning wordt standaard geleverd met een complete badkamer, inclusief douche, toilet en wastafel, kunststof kozijnen met HR++ glas, draaikiepramen en binnendeuren. Voor aangenaam comfort zijn drie infrarood- of plafondverwarmingspanelen aanwezig, en de woning beschikt over een volledige elektrische installatie en waterleidingen. De woning wordt binnen 4 tot 12 weken geleverd en kan sleutelklaar in slechts één dag op locatie worden geplaatst.
In de standaardprijs zijn een aantal belangrijke onderdelen en werkzaamheden niet inbegrepen. Dit betreft onder andere het regelen van vergunningen en het naleven van gemeentelijke voorwaarden, de fundering en het bijbehorende grondwerk, transport en hijswerk, de keuken (vrij te kiezen), schilderwerk, buitenriolering, een terras, luifel of overkapping, en een afgewerkte PVC-vloer met plinten. Op verzoek kan Kaynad al deze onderdelen volledig verzorgen, waardoor het project als een compleet sleutelklaar resultaat opgeleverd kan worden.
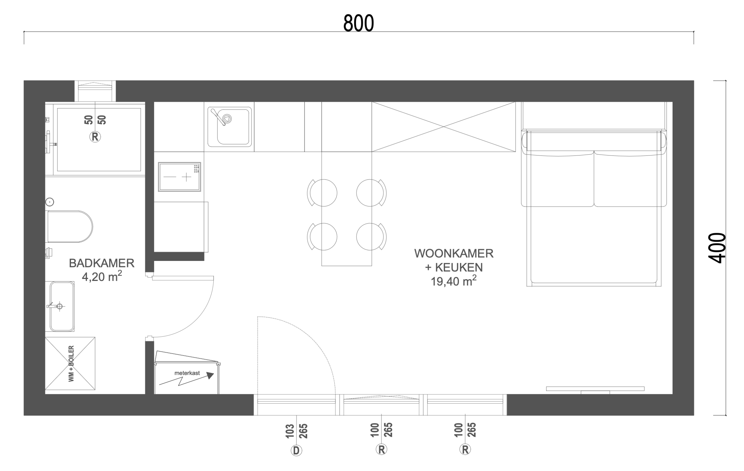
Deze prefab woning wordt volledig geproduceerd in onze fabriek in Kortgene en kan levering en plaatsing binnen slechts één werkdag gerealiseerd worden. De woning is BENG-conform, energiezuinig en duurzaam, en is opgebouwd met een houtskeletconstructie van Kerto LVL met hoogwaardige isolatie. De indeling omvat een keuken en woonkamer van 16,3 m², een slaapkamer van 8,6 m² en een badkamer van 4,2 m², met een totale buitenmaat van 9,00 × 4,00 m (36 m²). De productietijd bedraagt 4 tot 12 weken, waarna de woning in slechts één werkdag sleutelklaar wordt geïnstalleerd. U kunt de kwaliteit van onze prefab woningen zelf ervaren in onze showroom aan de Graafschap Hornelaan 118D, 6004 HT Kortgene, of direct een vrijblijvende offerte aanvragen.
Soms heb je geen extra woonruimte nodig, maar juist een rustige plek om te werken of te ondernemen. Ben je dus eigenlijk op zoek naar een tuinkantoor? Onze op maat gemaakte tuinkantoren bieden een comfortabele, geïsoleerde en stijlvolle werkruimte in je eigen tuin. Ontdek hoe je met een tuinkantoor productiviteit en privacy combineert, zonder concessies te doen aan design of functionaliteit.